Descrizione

Diano Marina: NEL CUORE DELL'ISOLA PEDONALE, A SOLI 20 METRI DALLE SPIAGGE PROPONIAMO IN VENDITA IN ESCLUSIVA SIGNORILE APPARTAMENTO DI TRE LOCALI CON BALCONE.
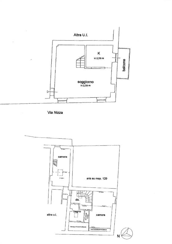
L'appartamento è sito al piano secondo ed ultimo di una mini palazzina storica in buone condizioni e si sviluppa come segue: ingresso, ampio soggiorno con cucina a vista e balcone; mediante una comoda scala interna in muratura si accede al piano sovrastante dove troviamo due camere da letto ed il bagno finestrato.
Il riscaldamento è autonomo a metano oltre l'impianto di condizionamento, gli infissi sono dotati di doppi vetri e le spese condominiali sono contenute.
Ne consigliamo vivamente la visione.
Per informazioni Divina Servizi Immobiliari 329-1448986 o 0183-493175 e-mail: dianomarina@immobiliaredivina.it. Altre interessanti proposte su www.immobiliaredivina.it. - La presente scheda non costituisce forma di contratto, le informazioni qui contenute sono da ritenersi del tutto indicative e non potranno essere utilizzate come parte integrante in un eventuale contratto di vendita o locazione della proprietà. La presente non vincola in alcun modo la società.


Caratteristiche principali

Stato Immobile
Ottimo
Grado
Signorile
Posizione
Centro
Panorama
Vista Aperta
Orientamento
Nord Ovest
Lati Liberi
2
Giardino
No
Arredi
Possibilità
Tipo Soggiorno
Soggiorno
Tipo Cucina
A Vista
Riscaldamento
Autonomo
Tipo Riscaldam.
Caldaia
Tipo Impianto
Radiatori
Fonte Energetica
Metano
Acqua Calda
Autonoma
Raffrescamento
Split
Infissi
Legno Doppio Vetro
Serramenti
Ottimo
Persiana
Persiana Metallo
Pavim. Giorno
Cotto
Pavim. Notte
Parquet
Pavim. Cucina
Cotto
Pavim. Bagno
Ceramica
Accesso Disabili
No
Accessori: Aria Condizionata, Camino, Doppi Vetri

Mappa

via Nizza 54, Diano Marina (IM)

Video

Cookie preference