Descrizione

Divina Servizi Immobiliari di Bovisio Masciago, Via Isonzo n°12, telefono 0362-594966 o 339-7082905.

In posizione centrale e servita di Palazzolo Milanese, proponiamo in esclusiva un elegante trilocale in Classe Energetica A, situato al terzo piano di una splendida palazzina con curato giardino condominiale.

Grazie alla doppia esposizione, l’abitazione risulta luminosissima e ben arieggiata, offrendo ambienti moderni e confortevoli.
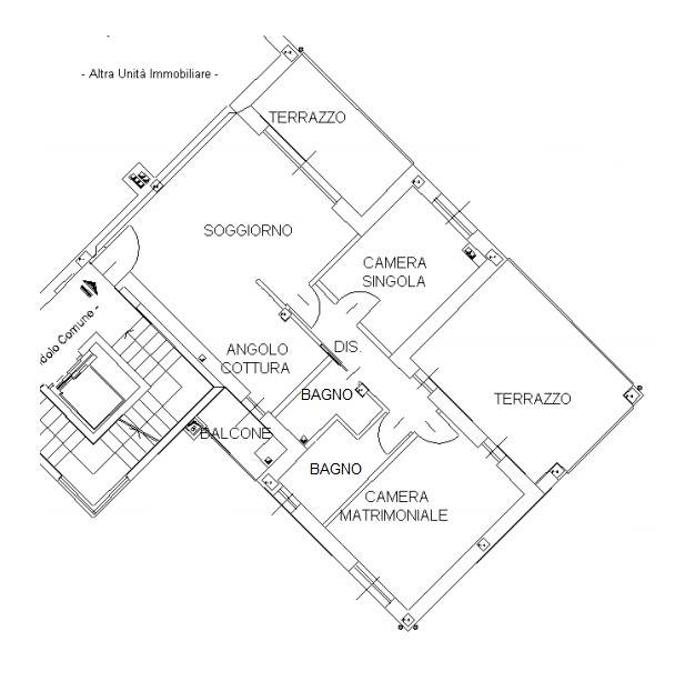
L’appartamento si compone di:
-Ampio soggiorno openspace con cucina a vista, affacciato su terrazzo vivibile e balcone;
- Due camere da letto spaziose;
- Doppi servizi;
- Secondo terrazzo loggiato, perfetto per rilassarsi all’aperto.
- Cantina e comodo box auto inclusi.

Dotazioni di alta efficienza e comfort:
- Classe Energetica A;
- Riscaldamento autonomo a pavimento;
- Impianto di aria condizionata;
- Tenda da sole;

Una soluzione ideale per chi desidera comfort moderno, efficienza energetica e spazi esterni vivibili, in un contesto elegante e tranquillo nel cuore di Palazzolo Milanese.

La presente scheda non costituisce forma di contratto, le informazioni qui contenute sono da ritenersi del tutto indicative e non potranno essere utilizzate come parte integrante in un eventuale contratto di vendita o locazione della proprietà. La presente non vincola in alcun modo la società.


Caratteristiche principali

Stato Immobile
Ottimo
Grado
Signorile
Panorama
Vista Aperta
Orientamento
Est Sud Ovest
Lati Liberi
3
Arredi
Non Arredato
Tipo Soggiorno
Soggiorno
Tipo Cucina
Angolo Cottura
Riscaldamento
Conta Calorie
Tipo Impianto
Pavimento
Acqua Calda
Centralizzata
Raffrescamento
Split
Infissi
Metallo Doppio Vetro
Serramenti
Ottimo
Persiana
Tapparella PVC
Pavim. Giorno
Ceramica
Pavim. Notte
Ceramica
Pavim. Cucina
Ceramica
Pavim. Bagno
Ceramica
Accesso Disabili
Nessuna Barriera
Accesso interno disabili
Pieno accesso
Accessori: Antifurto, Aria Condizionata, Ascensore, Cancello Elettrico, Doppi Vetri, Impianto Domotica, Impianto Satellitare, Lavanderia, Porta Blindata, Video Citofono, Zanzariere

Mappa

Via delle Robinie 14, Paderno Dugnano (MI)

Cookie preference